
appartamento di ampia metratura con splendida vista sulla Darsena
Casa in vendita a Savona, centro
Rif. 580
superficie184 m2
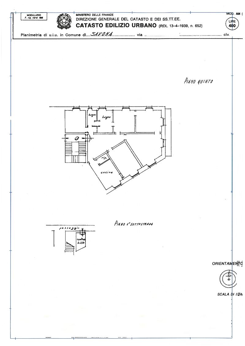
piano 5 / 6
camere3
bagni2
Appartamento di ampia metratura con splendida vista sulla Darsena
Proprietà in vendita a: Savona, centro
450.000,00 184 mq
RIF. 580
Appartamento di ampia metratura con splendida vista sulla Darsena
Proprietà in vendita a: Savona, centro
IN POSIZIONE COMODA AL CENTRO PROPONIAMO APPARTAMENTO DI GENEROSE DIMENSIONI POSTO AL QUINTO PIANO, SERVITO DA ASCENSORE, CON SPLENDIDA VISTA SUL PORTO DI SAVONA, COMPOSTO DA AMPIO INGRESSO, CUCINA ABITABILE, SALONE CON CAMINETTO, SALA DA PRANZO, TRE CAMERE, CABINA ARMADI, DOPPI SERVIZI, RIPOSTIGLIO E BALCONE. COMPLETA LA PROPRIETA' UNA CANTINA.
€ 450.000,00
Spese condominiali: € 66 mensili
Spese condominiali: € 66 mensili
terrazzo: -
cantina: 4m2
giardino: -
Bagni: 2
Certificazione in fase di realizzazione




